Nous transformons les concepts en réalité grâce au développement technique, à la coordination de projet et à la fabrication de précision.

Services

Faisabilité & Optimisation

Des idées initiales aux concepts pleinement réalisés, nous donnons vie à votre vision grâce à l'exploration créative et à la planification stratégique.

Développement Technique

Dessins techniques détaillés, visualisations 3D et solutions d'ingénierie qui relient le design et la fabrication.

Gestion de projet

Coordination complète de la conception à l'installation, garantissant que les projets sont livrés à temps et dans le budget.

Atelier de prototypage et fabrication

Fabrication CNC interne, prototypage et menuiserie sur mesure avec précision et souci du détail.

Projets en vedette

Sofitel Golden Mile

Rénovation Sofitel Golden Mile

Design Technique, Fabrication CNC, Gestion de Projet / avec Atelier Fero Bosc

Les Filles Fattoush

Les Filles Fattoush

Design Technique, Coordination de Projet / avec Atelier Fero Bosc

L'Oréal Dermo Booth

L'Oréal Dermo Booth - Conférence SDM Toronto

Design technique, Fabrication, Coordination / avec The NNS

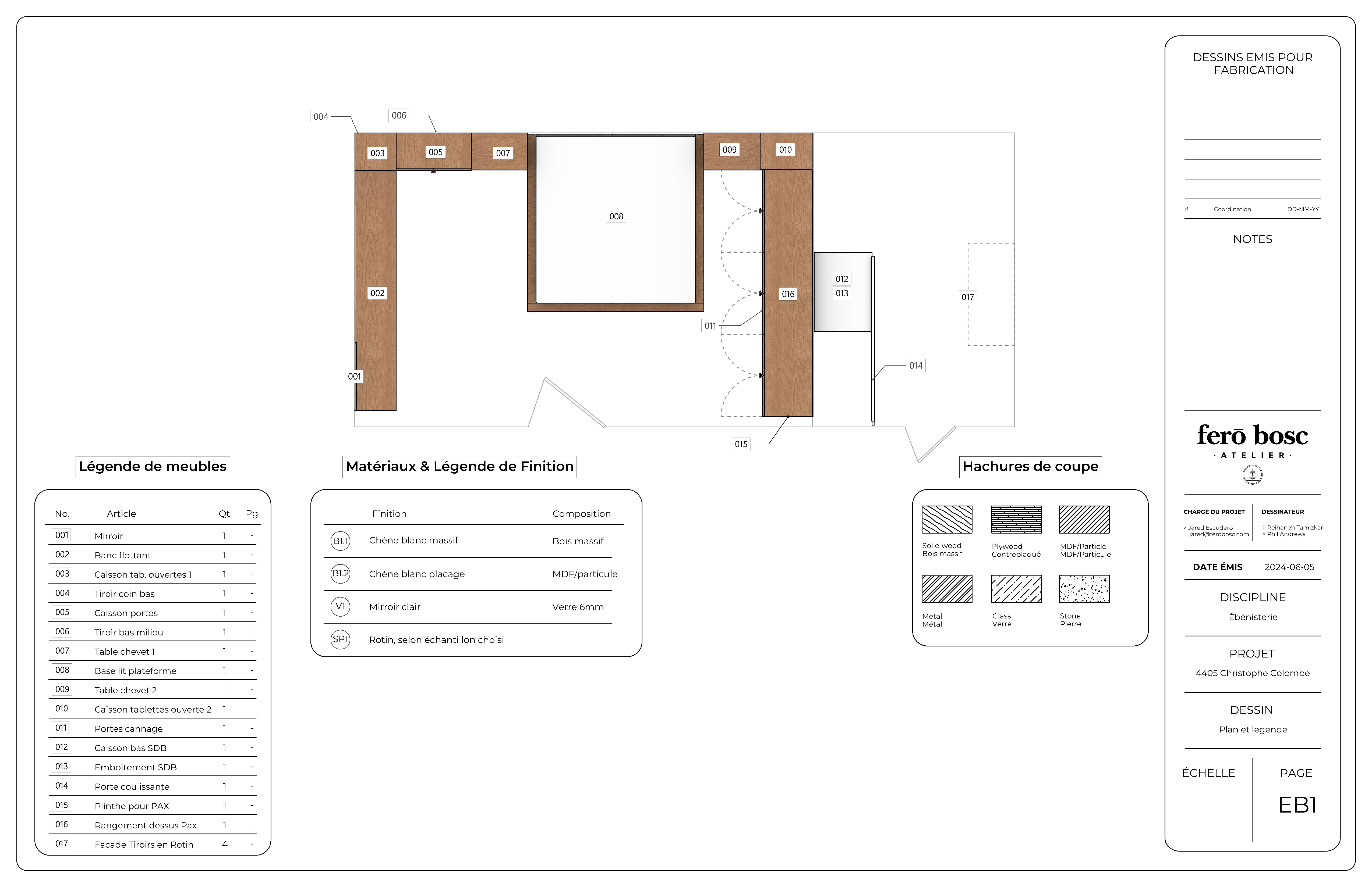
Residence Christophe Colombe

Residence Christophe Colombe - Michael Godmer Studio

Design Technique, Gestion de Projet / avec Atelier Fero Bosc

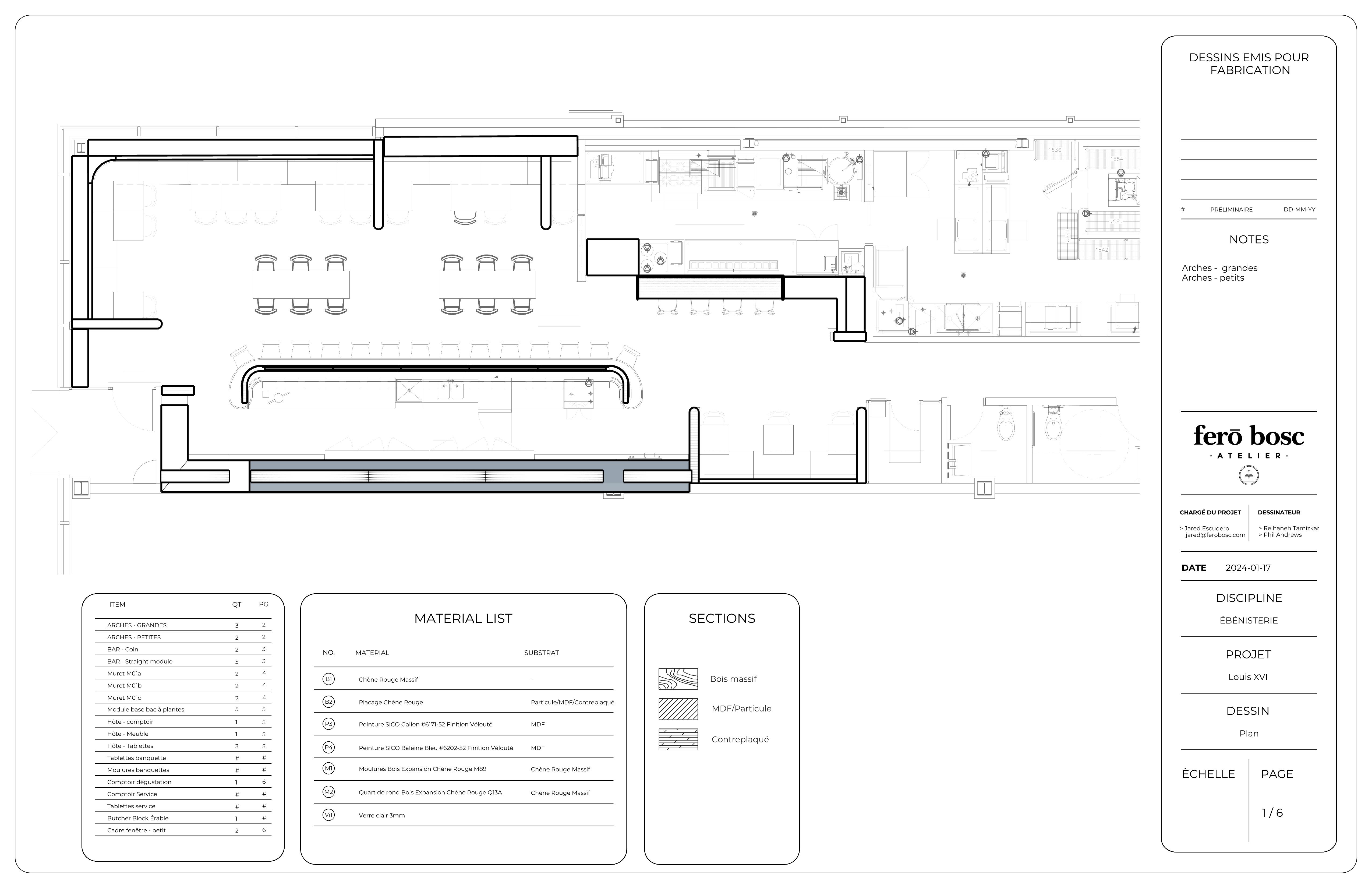
Restaurant Louis XVI

Restaurant Louis XVI - Taktik Design

Design Technique, Coordination de Projet / avec Atelier Fero Bosc

Sue Foods Griffintown

Sue Foods Griffintown - Rubik Design

Design technique, Fabrication CNC, Gestion de Projet / avec Atelier Fero Bosc

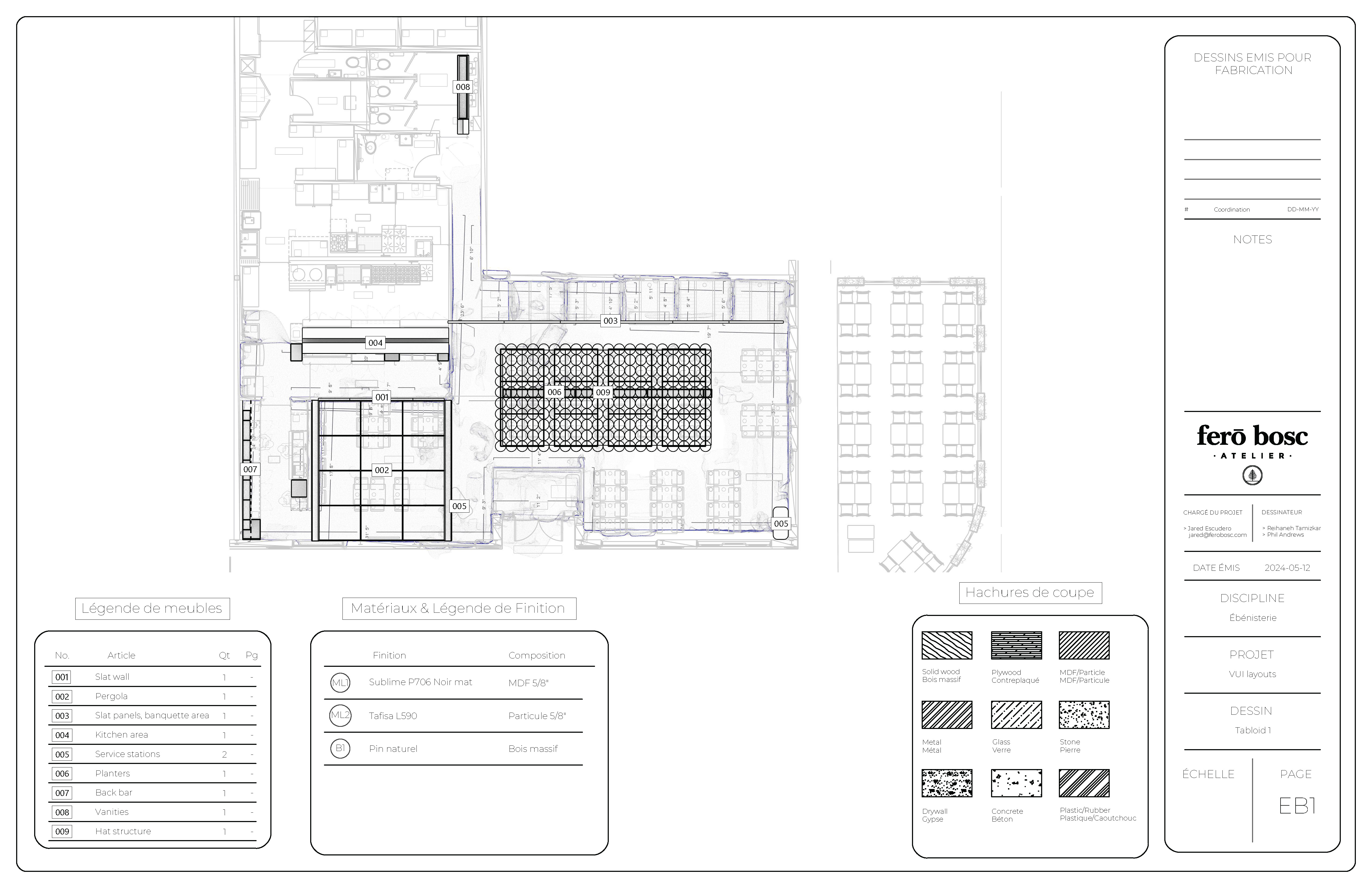
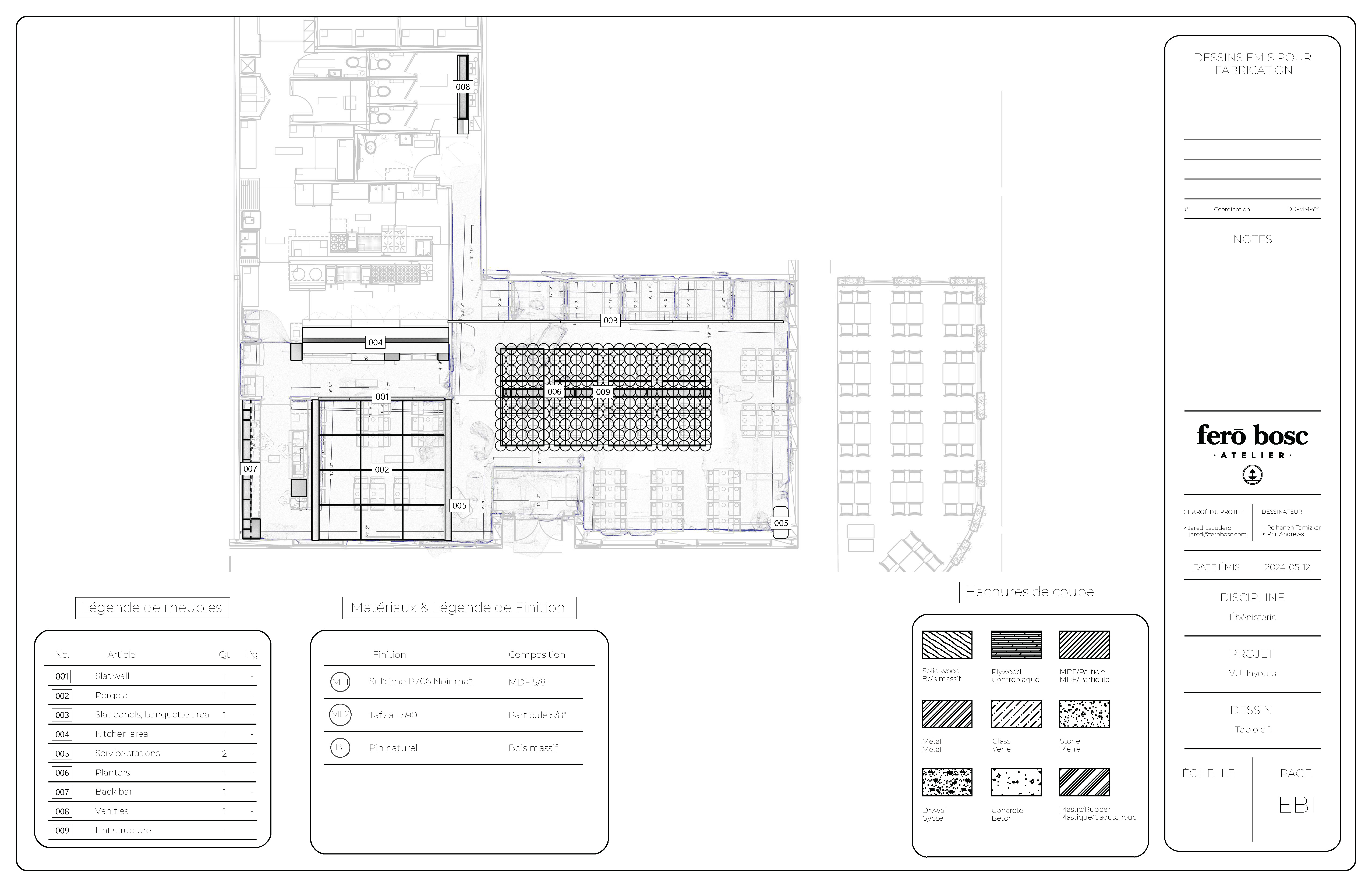
Restaurant Vui Dix30

Restaurant Vui Dix30 - Groupe General Construction

Design technique, Fabrication CNC, Coordination de Projet / avec Atelier Fero Bosc

Comptoir Restaurant Roselys

Comptoir Restaurant Roselys - Fairmont Queen Elizabeth

Design Concept et Technique, Gestion de Projet / avec Atelier Fero Bosc

Fairmont Tremblant

Fairmont Tremblant - Gold Lounge Furniture

Design Technique, Coordination de Projet / avec Atelier Fero Bosc

Restaurant Balam Royalmount

Restaurant Balam Royalmount

Design Technique, Visualisations 3D / avec Atelier Fero Bosc

Café de Montréal

Café de Montréal

Design Technique, Coordination de Projet / avec Atelier Fero Bosc

Welldun Pizzeria

Welldun Pizzeria

Design Technique, Fabrication CNC / avec Atelier Fero Bosc

Meubles Présentoirs Stone Tile

Meubles Présentoirs - Stone Tile Toronto

Design Technique, Fabrication CNC / avec Atelier Fero Bosc

BCuit Boutique

BCuit Boutique

Développement concept, Visualisations 3d / avec Jeremy Petrus design

À propos d'AUX

Mission

AUX comble le fossé entre la vision du design et la réalité construite. Nous fournissons des solutions complètes couvrant le développement de concepts, le design technique, la coordination de projets et la fabrication de précision.

Méthodologie

Notre approche combine innovation créative et précision technique. Nous collaborons étroitement avec les designers, architectes et clients pour assurer une exécution sans faille du concept initial à l'installation finale.

Outils et Ressources

Nous exploitons des logiciels CAO avancés, des outils de visualisation 3D et des équipements de fabrication CNC pour livrer des projets avec précision et efficacité.

Contactez-nous

Discutons de votre prochain projet

projets@auxfab.ca